型號:ZQGP
技術參數:
ZQGP氣動活塞快速切斷閥填料:V型聚四氟乙烯(F4)、柔性石墨
墊片:增強聚四氟乙烯(F4) 、不銹鋼墊片、金屬石墨纏繞墊片
O型密封圈:耐油橡膠
彈簧:60Si2Mn
推桿:2Cr13
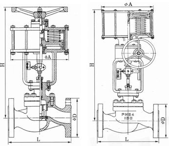
ZQGP型氣動快速切斷閥由國內推出的氣動多彈簧活塞執(zhí)行機構和低流阻、雙重密封結構的切斷閥組成。執(zhí)行機構動作速度快、推力大、有自復位功能、帶手操機構;閥體流路通暢、流量系數大、閥芯閥座有彈性和剛性串級雙重密封。新穎 結構使本產品成為一類快速動作、嚴密切斷、安全可靠的高性能新型切斷閥。

主要零件材料
| 材料代號 | C(WCB) | P(304) | R(316) | |
| 主要 零件 | 閥體、閥蓋 | WCB(ZG230-450) | ZG1Cr18Ni9Ti(304) | ZG1Cr18Ni12Mo2Ti(316) |
| 閥芯、閥座 | 1Cr18Ni9Ti(304)或司鈦萊合金堆焊 | 1Cr18Ni9Ti(304)或司鈦萊合金堆焊 | 1Cr18Ni12Mo2Ti(316)或司鈦萊合金堆焊 | |
| 閥桿 | 2Cr13 | 1Cr18Ni9Ti | 1Cr18Ni12Mo2Ti | |
| 填料 | V型聚四氟乙烯(F4)、柔性石墨、 | |||
| 墊片 | 增強聚四氟乙烯(F4) 、不銹鋼墊片、金屬石墨纏繞墊片 | |||
| O型密封圈 | 耐油橡膠 | |||
| 彈簧 | 60Si2Mn | |||
| 推桿 | 2Cr13 | |||
| 手輪 | HT200 | |||
| 適用工況 | 適用介質 | 水蒸汽油品類氣液體 | 硝酸堿類腐蝕性氣液體 | 醋酸類等腐蝕性氣液體 |
| 適用溫度 | 硬密封:-30~+450℃ 軟密封:-30~+180℃ | |||
主要技術參數
| 公稱通徑 mm | 20 | 25 | 40 | 50 | 65 | 80 | 100 | 150 | 200 | ||
| 閥座直徑 mm | 20 | 25 | 32 | 40 | 50 | 65 | 80 | 100 | 125 | 150 | 200 |
| 額定流量系數 Kv | 6.5 | 10 | 15 | 25 | 40 | 65 | 100 | 150 | 260 | 350 | 540 |
| 公稱壓力 MPa | 1.6 ; 4.0 ; 6.4 | ||||||||||
| 行 程 mm | 10 | 16 | 25 | 30 | 40 | 60 | |||||
| 流量特性 | 快 開 | ||||||||||
| 執(zhí)行器型號 | ZSPA/B-1、ZSNA/B-1 | ZSPA/B-2、ZSNA/B-2 | ZSPA/B-3、ZSNA/B-3 | ||||||||
| 作用形式 | 單作用型/雙作用型 | ||||||||||
| 氣源壓力MPa | 0.4-0.7 | ||||||||||
| 泄漏量 | 軟密封:O泄漏;硬密封:10-5×閥的額定容量 | ||||||||||
| 切斷時間S | 0.5 | 1 | 1.5 | 2 | 3 | 4 | |||||
配用附件:電磁閥、閥位回訊器、空氣過濾減壓器、手輪操作機構外形尺寸
| DN(mm) | H(mm) | Hg(mm) | ФA(mm) | ФD(mm) | L(mm) | ||
| PN1.6 | PN6.4 | PN1.6 | PN6.4 | ||||
| 25 | 410 | 580 | 196 | 115 | 135 | 184 | 210 |
| 40 | 514 | 684 | 266 | 150 | 165 | 222 | 251 |
| 50 | 520 | 690 | 266 | 165 | 175 | 254 | 286 |
| 65 | 694 | 904 | 348 | 185 | 200 | 276 | 311 |
| 80 | 696 | 906 | 348 | 200 | 210 | 298 | 337 |
| 100 | 709 | 919 | 348 | 220 | 250 | 352 | 394 |
| 150 | 1186 | 1146 | 486 | 285 | 340 | 451 | 508 |
| 200 | 1208 | 1468 | 486 | 340 | 405 | 600 | 650 |
訂貨須知 1.產品型號與名稱 2.公稱通徑DN(mm 3.公稱壓力 4.流量特性要求 5.閥體材質及閥內件材料 6.介質種類和溫度范圍 7.閥前后壓力(壓差) 8.密封形式 9.配套附件,建議用戶安裝空氣過濾器三聯件與二位五通電磁閥








?公司郵箱登入
?
浙公網安備33032402002441號